Home
Projects
Atraktos
About
News
Contact
Home
Projects
Atraktos
About
News
Contact
EP Architects
>
Projects
>
Residential
>
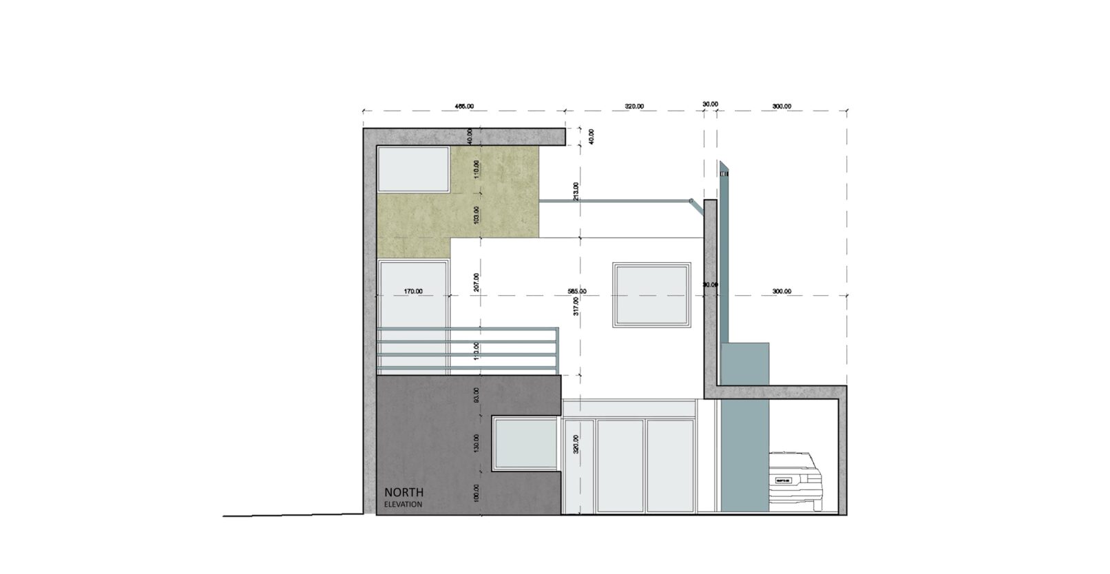
HOUSE _Π
HOUSE _Π
PROJECT
House _Π, 2013
PLACE
Nicosia, Cyprus
CLIENT
Private Client
ARCHITECTS
EP Architects
PROJECT ARCHITECT
Elina Pattichi
CATEGORY
Residential
Previous
Next